所有项目

洛杉矶万丽花园项目
  • 洛杉矶万丽花园项目
  • 洛杉矶万丽花园项目
  • 洛杉矶万丽花园项目
  • 洛杉矶万丽花园项目
  • 洛杉矶万丽花园项目
洛杉矶万丽花园项目洛杉矶万丽花园项目洛杉矶万丽花园项目洛杉矶万丽花园项目洛杉矶万丽花园项目

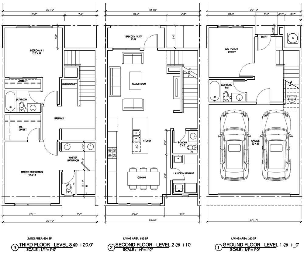
以上是A户型平面图,2.5个房间 / 3.5个卫生间 / 2个停车位,规划面积:2,048平方英尺;其中产权面积:1,612平方英尺,车库面积:400平方英尺,阳台面积:36平方英尺。
房屋配套功能:每个房屋有自己的洗衣房,配套两个免费停车位,同时配套有独立的中央空调、煤气或者电炉灶、洗碗机。


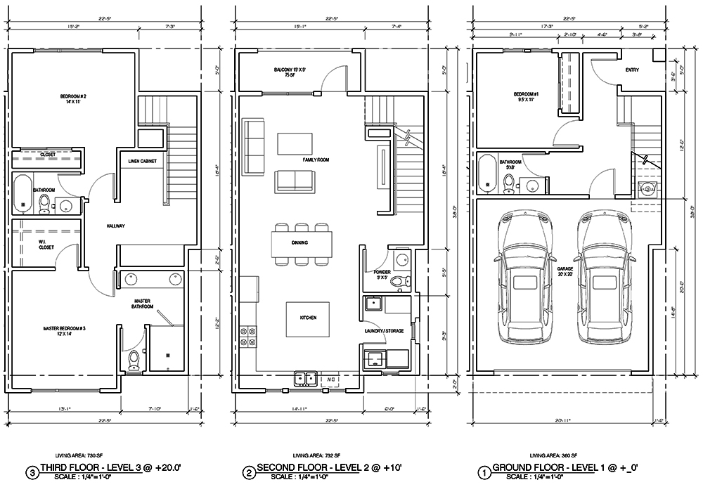
以上是B户型平面图,3个房间 / 3.5个卫生间 / 2个停车位,规划面积:2,166平方英尺;其中产权面积:1,730平方英尺,车库面积:400平方英尺,阳台面积:36平方英尺。
房屋配套功能:每个房屋有自己的洗衣房,配套两个免费停车位,同时配套有独立的中央空调、煤气或者电炉灶、洗碗机。


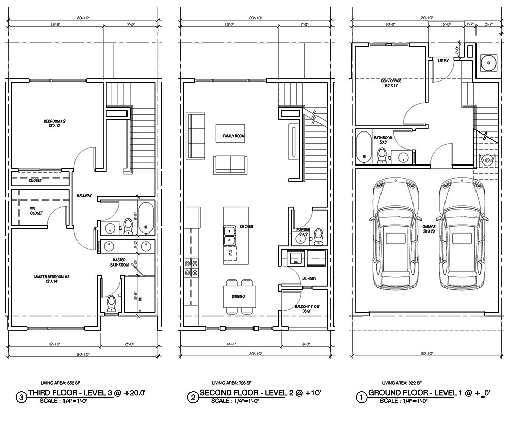
以上是C户型平面图,3个房间 / 3.5个卫生间 / 2个停车位,规划面积:2,157平方英尺;其中产权面积:1,692平方英尺,车库面积:400平方英尺,阳台面积:65平方英尺。
房屋配套功能:每个房屋有自己的洗衣房,配套两个免费停车位,同时配套有独立的中央空调、煤气或者电炉灶、洗碗机。


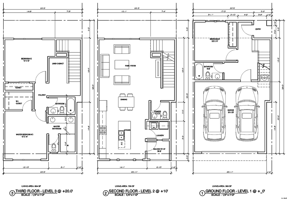
以上是D户型平面图,3个房间 / 3.5个卫生间 / 2个停车位,规划面积:2,297平方英尺;其中产权面积:1,822平方英尺,车库面积:400平方英尺,阳台面积:75平方英尺。
房屋配套功能:每个房屋有自己的洗衣房,配套两个免费停车位,同时配套有独立的中央空调、煤气或者电炉灶、洗碗机。


请点击下面的图片,这是可以360度浏览万丽花园房屋室内的网络样板房屋。装修标准和家用电器,跟长滩家园项目现房基本一样。如果您没有时间前往长滩看样板房,您可以点击下面的图片链接浏览网络样板房。

一楼车库室内360度视频浏览:点击这里

一楼前门厅室内360度视频浏览:点击这里

二楼客厅室内360度视频浏览:点击这里

二楼厨房室内360度视频浏览:点击这里

二楼卫生间室内360度视频浏览:点击这里

三楼主卧室室内360度视频浏览:点击这里

三楼主卫生间室内360度视频浏览:点击这里

三楼次卧室室内360度视频浏览:点击这里

三楼次卫生间室内360度视频浏览:点击这里


项目地址:9933 VALLEY BLVD EL MONTE CA 91731 AND 9909 VALLEY BLVD EL MONTE CA 91731 AND 9911 VALLEY BLVD EL MONTE CA 91731

项目类别:居住功能CONDO。

项目规划27栋CONDO,每个单位独立产权,独立出入的联排公寓。

一楼约300多平方英尺,另有两个室内车库,车库面积约400平方英尺。

二楼厨房和客厅约700平方英尺,另有约36到75平方英尺的阳台。

三楼有两个带卫生间的套房,约600多平方英尺。

计划2025年6月开工,2027年6月建成。

洛杉矶万丽花园街景浏览: 点击这里

户型室内360度视频浏览:点击这里


相关附件:

1.万丽花园2025年规划图(点击查看详情)

2.万丽花园2025年项目TEA认证(可以投资80万美金)

3.万丽花园画册(点击查看详情)

4.效果图(点击查看详情)

5.项目商业发展计划(点击查看详情)

6.项目规划概念批准(点击查看详情)

联系我们

联系人:Johnson FANG

电话:808-800-4999

邮箱:thlusa@gmail.com

地址:227 W Valley Blvd 288#B, San Gabriel, CA 91776 (在圣盖博希尔顿广场二楼)